Načítání...

Vyvýšené záhony pro školní zahradu

Woodlands Academy se rozhodla proměnit školní zahradu ve venkovní učebnu, která bude děti bavit a motivovat je k aktivnímu přístupu ke školní výuce.

Škola měla k dispozici velké, ale staré a zanedbané asfaltové hřiště. Proto se ho rozhodla změnit na barevnou zahradu, kde se žáci budou nejen učit, ale i bavit. A to instalací dřevěných záhonů WoodBlocX.

Plánujeme zahradu

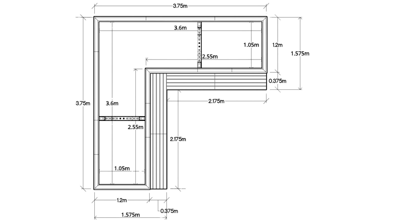
Žádná polovičatá řešení – škola si pomocí služby Návrhy na míru zdarma nechala navrhnout záhony v kombinaci L-tvarů, obdélníků i kulatých záhonů. Pro menší děti se přidala i lavička. Nyní tu mají děti dost prostoru na pěstování rostlin, učí se, jak pracuje příroda a mohou poznat, co to znamená starat se o rostliny. A díky lavičce mají i místo k odpočinku.

Příprava a stavba

Asfalt? Žádný problém. Stačilo jen určit rovná místa vhodná ke stavbě a pustit se do práce. Žáci si sami přeměřili plochu, i si pak sami sestavili záhony vrstvu po vrstvě podle Návodu k sestavení. Nakonec přidali ochrannou fólii, aby dřevo vydrželo co nejdéle. V tomto případě byly stavby ukončeny tradičním ukončovacím profilem, který je s mírným přesahem na obou stranách. Zvolit si můžete i moderní verzi ukončujícího profilu, který je bez přesahu.

Pak už jen substrát, květiny, keře a na závěr mulčovací kůra – a proměna školní zahrady byla hotová.

 

A jak to dopadlo?

Z nudného hřiště se stal pestrý kout plný květin a zeleně. Žáci tu mohou sázet, učit se i odpočívat. Kombinace různých záhonů dává prostoru šmrnc a lavičky přímo vybízí k posezení. Výsledek? Místo, které děti baví a kde jsou rády.

V naší nabídce najdete již nakonfigurované sestavy pro školní zahrady, můžete se inspirovat již hotovými projekty, nebo nás kontaktujte a vytvoříme návrh na míru přímo vaší škole a ZDARMA!

Projekt venkovního učení WoodBlocX


Nová zahrada není jen hezká na pohled. Je bezpečná, udržitelná a ideální k tomu, aby děti mohly objevovat své nové dovednosti. Konstrukce se staví jednoduše, bez těžké techniky – takže se do práce můžou zapojit i sami žáci. A to je přesně ten důvod, proč WoodBlocX sbírá v školách úspěchy: přináší inspiraci, kreativitu i radost z venkovního učení.


Navrhněte si venkovní učebnu

Žádná polovičatá řešení – škola si pomocí služby Návrhy na míru zdarma nechala navrhnout záhony v kombinaci L-tvarů, obdélníků i kulatých záhonů. Pro menší děti se přidala i lavička. Nyní tu mají děti dost prostoru na pěstování rostlin, učí se, jak pracuje příroda a mohou poznat, co to znamená starat se o rostliny. A díky lavičce mají i místo k odpočinku.